972 FM 1696, Huntsville
Property Details
- Home SqFt: 1,789
- Acres: 59.00
- Price: $1,325,000
- Beds/Baths: 3/2.5
- School District: 64 - Huntsville
- Address: 972 Fm 1696 Road W
- City: Huntsville
- State: Texas
- Zip: 77320
- County: Walker
Property Description
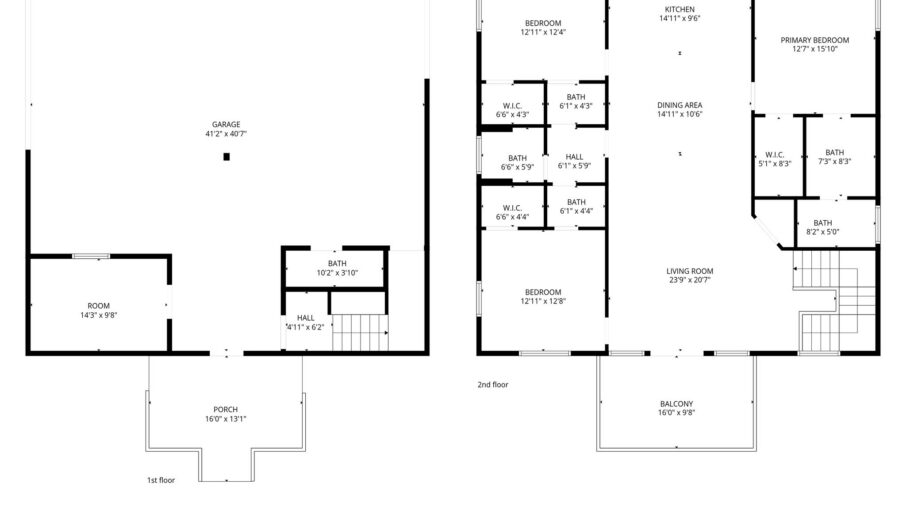
59+/- unrestricted Acres, 3 Bedroom, 2-1/2 bath, 1789 Sq Ft Custom Barndo located approx. 15 minutes west of Huntsville! The 2017 home has an open concept kitchen, dining and living area, split bedrooms and great views from all areas. The lower level includes a 41' x 41' Shop/entertainment area with 2 automatic doors on each end, one 1/2 bath, entertainment area complete with serving/storage area and water softener. Living area specs include, solid wood floors | brick backsplash in Kitchen and Baths | Granite Countertops in Kitchen, Primary & Guest Baths | Center Island with bar, storage and beverage fridge | Farmhouse Sinks | walk-in closets | Cathedral ceiling/wood treatment | Appliances convey | Water well | Aerobic system | MidSouth electric and Fiber Internet. The beautiful property is primarily wooded with mixed species of trees and underbrush, ideal for wildlife or recreation, pick and choose what you want to clear for your livestock, family compound or corporate retreat.
Property Map / Directions
From I-45 North. Take Exit 116 to TX-30. Turn left (west) onto TX-30 W and continue for about 7.4 miles. Turn right onto FM 2550 and drive about 4.2 miles north. Turn left onto FM 1696 travel approx. 2 miles, property will be on the right. Look for Jacobs Properties sign, do not neter property without listing agent.

